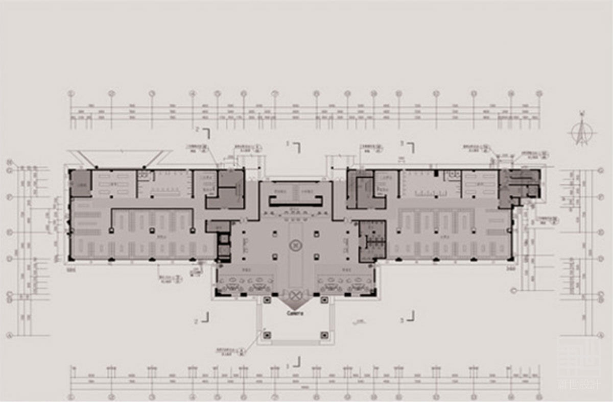
河北盛都溫情假日酒店位于河北省邢臺市北環線郭守敬大道與京珠高速公路交匯口處北,是集文化展示、生態養生、旅游休閑和酒店會所等諸多功能于一體的假日休閑場所。酒店有河北盛都房地產開發有限公司總投資額5億元興建,酒店建設規模:總建筑面積約1.5萬平方米,包括綜合樓、餐飲會議樓、高檔別墅。
度假酒店整體建筑風格以中式風格為主線,即體現江南園林的精致有不失北方園林的大氣,打破北方室內溫泉封閉洗浴的常規經營模式,強調溫泉SPA療養自然生態沐浴的閑適,溫泉產品的設置體現了精致、生態、養生的溫泉沐浴理念。






河北盛都溫情假日酒店位于河北省邢臺市北環線郭守敬大道與京珠高速公路交匯口處北,是集文化展示、生態養生、旅游休閑和酒店會所等諸多功能于一體的假日休閑場所。酒店有河北盛都房地產開發有限公司總投資額5億元興建,酒店建設規模:總建筑面積約1.5萬平方米,包括綜合樓、餐飲會議樓、高檔別墅。
度假酒店整體建筑風格以中式風格為主線,即體現江南園林的精致有不失北方園林的大氣,打破北方室內溫泉封閉洗浴的常規經營模式,強調溫泉SPA療養自然生態沐浴的閑適,溫泉產品的設置體現了精致、生態、養生的溫泉沐浴理念。






河北盛都溫情假日酒店位于河北省邢臺市北環線郭守敬大道與京珠高速公路交匯口處北,是集文化展示、生態養生、旅游休閑和酒店會所等諸多功能于一體的假日休閑場所。酒店有河北盛都房地產開發有限公司總投資額5億元興建,酒店建設規模:總建筑面積約1.5萬平方米,包括綜合樓、餐飲會議樓、高檔別墅。
度假酒店整體建筑風格以中式風格為主線,即體現江南園林的精致有不失北方園林的大氣,打破北方室內溫泉封閉洗浴的常規經營模式,強調溫泉SPA療養自然生態沐浴的閑適,溫泉產品的設置體現了精致、生態、養生的溫泉沐浴理念。






深圳市福田保稅區市花路1號金融科技創新中心A座15樓
159-7424-2408 137-1455-1726
xs@xiaodesign.com