“就東方設計而言,傳統與現代是蛹與蝶的關系,它們具有同樣的DNA,但它們卻形態各異。蛹一旦破繭化蝶,那么它新的生命體狀態將是美麗不可方物的。”
——Designer
◆湘西印象
中國元素凝聚著中華五千年的文化底蘊,它高雅、含蓄的氣質常給人唯美的飄逸、自然的意境。
不僅國人把它放在一個較高的審美領域,在西方設計界也流傳著這樣一個觀點:“沒有中國元素,就沒有貴氣。”中式風格的魅力可見一斑。
◆湘西印象
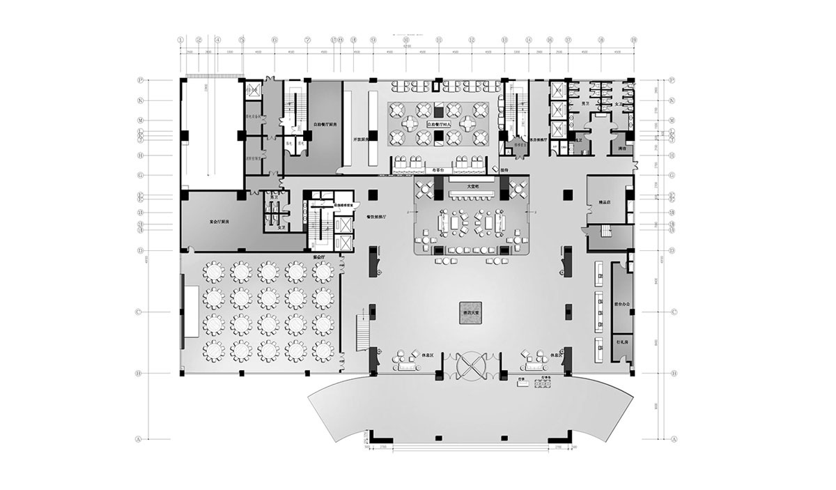
/ 隱與舍 收與放 /
平衡與取舍,成了我們在做這個酒店設計中的核心問題。「忍住」這是我們在做項目中一直告誡自己的語言。
在最初的一輪一輪的腦洞大開之后,我們摒棄了所有的夸張與修飾,甚至是「現代中式」也不是我們的唯一選擇。最終我們決定從當地苗族傳統建筑中吸取養分,因為她才是真正從這里“長出來的”、“接地氣的”。
整體融入苗族的民族文化元素,除此之外,設計師也沒有完全拋棄古典中式裝飾藝術中的精華與雅韻。而是讓傳統文化,順應現代人的審美改變而重新組合與構造。
為配合和襯托出項目的民族元素,軟裝設計均采用現代中式風格,所設置的框景門窗以及圖案隔柵和屏風作為視覺導向。
苗族的傳統樣式糅合現代材料,感覺煥然一新,古典的圖案也被重新包裝成現代幾何圖案,創新演繹典雅美感。
收住后,現在開始沉下心來放。我們琢磨在酒店的空間到底需要一種什么樣的生活方式來詮釋呢?我們更強調一種生活品質:在超越基本生活方式之上,她應當像是一場浪漫的邂逅,講究情調的營造。我們認為這種生活品質體現在空間劃分上應為:客房〉大堂公區〉走廊。因此,客房被賦予了新的定義,注重景觀朝向,給人以心靈的歸屬感。大堂被賦予了新的功能,尺度加大且功能分區,休閑空間被放大并置于陳設搭配營造的氛圍當中,營造輕松且舒適的感受。
走廊在這種全新的生活方式中被融入了文化,變成了傳統建筑空間里的展臺與廊,強調空間的流動與情趣。
正是這樣的隱與舍,得到的是對酒店設計本身的“遺忘”,換來的是與客人的親近。










關于蕭世
新聞中心
設計案例
蕭世研究
客戶服務