利用樹棲酒店創始人獨一無二的指紋印章作為品牌形象,不僅傳遞了我們對旅客的誠意與承諾,更承載了創始人想為父親打造一個酒店的夢想與感恩的心。
世界上沒有相同的指紋,也沒有完全一致的樹,可我們都是父親疼愛的孩子。
設計師將指紋元素衍生為蘊含生機與可靠的大樹,旨在用此形象訴說樹棲酒店創始人與父親的故事。
本案出于以樹為本的立意,我們將“樹”這個字作為整體設計的發散點,將它拆分成每一個與功能空間契合的設計元素 。
樹拆開有木,它是材質元素,也是空間的氣質引現。幾十年生命周期的沉淀,它是沉穩的,它決定了空間最重要的氛圍感和氣質屬性。
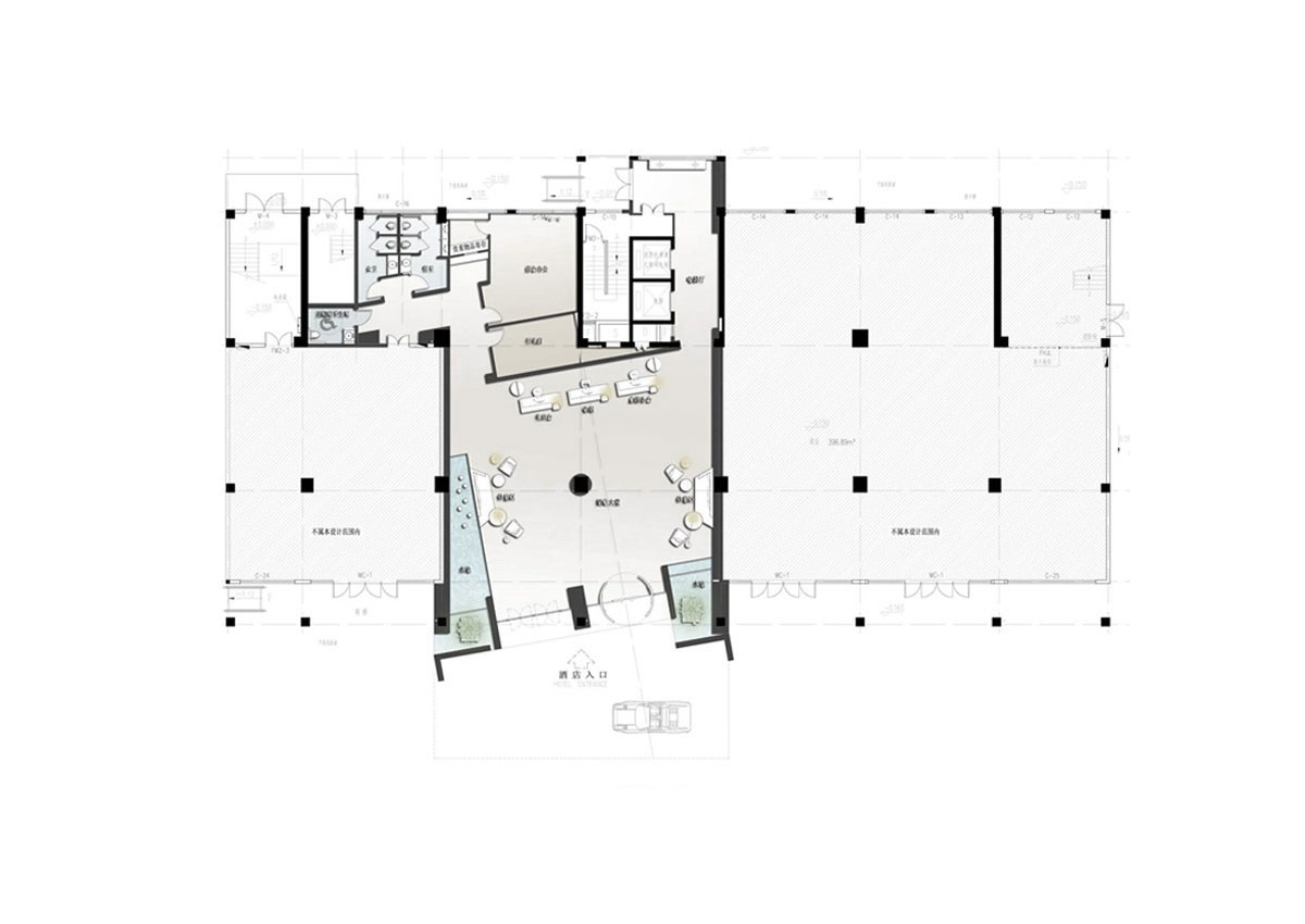
我們營造了入口處的以樹為元素的主題迎賓形象,縮窄橫向的尺度,形成一個通高的入口空間,擠壓出一種向上伸展的力量。
樹棲,拆開有十。它是空間結構,是縱橫,是穿插,是樹棲酒店的創始人在發展過程中愈發多維的產品分支和架構,也是一種穩固和平衡,是一個企業長久的支立。
我們設計枯木立柱和新建的下沉休息區形成十字型穿插,穩固了空間結構和氣場,也將真正進入公共空間之前的緩沖區做了界限。垂直半空的結構造型,是一種斷裂和新生;是我們倡導空間應有的呼吸感;是樹蘊含的生機與活力。
樹棲,拆開有人。人是空間的使用者,空間的互動性之于人和人、人和空間、人和物之間。
每個客房空間我們想要表現的情緒,預設的場景,心境都高于形式,對于空間尺度的把控影響著體驗者最直觀感受。
樹棲,拆開是一。一是始終,是獨一,是平衡,是尺度,是剝開“樹”字后最核心的立柱,是空間設計中最根本的結構。
以線作面,塊面之間形成多樣的可能,讓樹的設計元素和空間的互動有延續性及反復性。
同時對于樹棲酒店的創始人來說,一是他們專注酒店服務執行的精神,也是無限恒遠發展的未來。
將這些發散的設計立意點,以空間結構、尺度、色彩的形式鋪開,結合功能性的區域劃分,最終呈現出這樣的一個樹棲酒店空間。














深圳蕭世酒店設計公司有著20年的酒店項目裝修設計資深經驗。蕭世設計在主題酒店,精品酒店,商務酒店,度假酒店,星級酒店,民宿客棧等項目裝飾裝修設計方面有著獨到見解,和一眾精品成功案例項目。蕭世期待為每一位客戶精心打造貫穿格調、品位、意境的特色魅力項目。http://www.yutiannet.com.cn/
關于蕭世
新聞中心
設計案例
蕭世研究
客戶服務